新築一戸建て 佐賀市大和町大字東山田
所在地
佐賀市大和町大字東山田
2,780万円
31.31坪
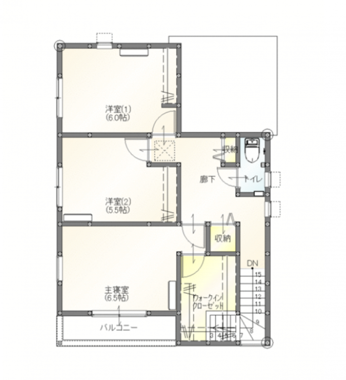
4LDK
閑静な住宅街!
佐賀大和ICまで車で約5分!
小城方面へも鳥栖方面へも移動しやすい立地!
駐車スペース3台分以上!
ローソン佐賀大和店まで徒歩で約6分(約400m)
佐賀信用金庫尼寺支店まで車で約4分(約1.6km)
イオンモール佐賀大和まで車で約6分(約2.4km)
月々の支払例
【※ボーナス払い無し】
【※ボーナス払い無し】
※佐賀銀行/頭金0円、返済期間40年、金利1.120%変動金利変動金利型(2026年05月)の場合
※金利は毎月見直されます。別途、融資手数料、その他諸費用がかかります。
※審査により金利は変わる可能性があります。
物件概要
- 交通
-
長崎線 佐賀駅 バス17分乗車 バス停昭和バス佐賀営業所 まで 徒歩5分
長崎線 佐賀駅 まで 徒歩60分
- 接道状況
- 西側 公道6m 間口約12m
- 土地面積
- 公簿 256.94㎡ (77.72坪)
- 建物面積
- 103.51㎡ (31.31坪)
- 築年数
- 2025年 (令和7) 9月
- 建ぺい率
- 60%
- 容積率
- 100%
- 土地権利
- 所有権
- 構造および階数
- 木造 地上2階建
- 小学校区
- 川上 ( 1200m )
- 中学校区
- 大和 ( 350m )
- 私道負担
- なし
- 地目
- その他
- 現況
- 完成済
- 引渡時期
- 相談
- 駐車場
- 3台
- 上水道
- 下水道
- ガス
- 都市計画
- 市街化調整区域
- 用途地域
- 定無
- 建築確認番号
- 第R6確申建築佐市建築00197号
- 設備・条件
- 側溝、オール電化、システムキッチン、IHクッキングヒーター、食器洗浄乾燥機、モニタ付インターホン、洗浄便座、ウォークインクローゼット、複層ガラス、追い焚き、駐車場3台分、トイレ2箇所、収納スペース、照明器具、庭、浄水器、ディンプルキー、上水道、浄化槽、高温差湯式、シャワー付洗面化粧台、浴室に窓あり、オープンキッチン、EV車充電設備、クローゼット、モニター付インターホン、ディンプルキー、シャッター雨戸、省エネ給湯器、全居室フローリング、室内物干し、電気、人感センサー付照明、ダウンライト、照明器具、火災警報器(報知機)
- 備考
- ぐるっとさがナビ防災・防犯マップによると洪水による浸水深3.0~5.0m想定区域
- 取引態様
- 仲介

