新築一戸建て 佐賀市神野西3丁目
所在地
佐賀市神野西3丁目
3,999万円
33.06坪
4LDK
駐車場2台分!
天井高2.5M以上!
オール電化!
ローソン佐賀神野西3丁目店まで徒歩で約4分(約290m)
佐賀神野町郵便局まで徒歩で約8分(約550m)
マルキョウ神野店まで徒歩で約11分(約800m)
月々の支払例
【※ボーナス払い無し】
【※ボーナス払い無し】
※佐賀銀行/頭金0円、返済期間35年、金利1.120%変動金利変動金利型(2025年12月)の場合
※金利は毎月見直されます。別途、融資手数料、その他諸費用がかかります。
※審査により金利は変わる可能性があります。
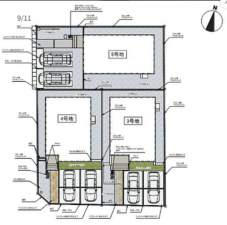
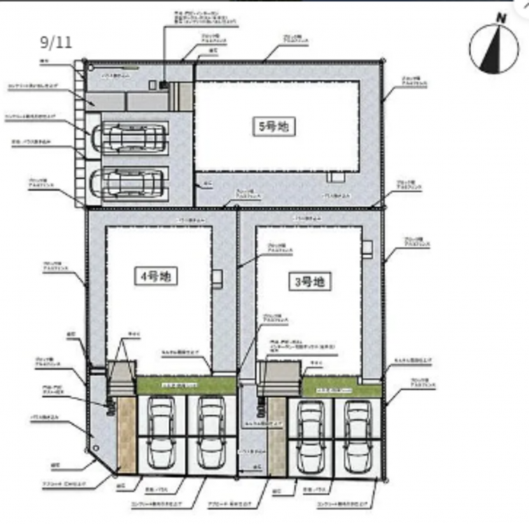
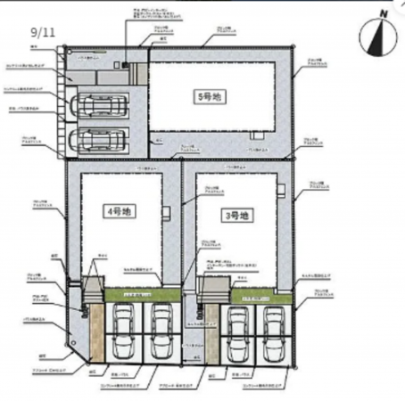
物件概要
- 交通
-
長崎線 佐賀駅 まで 徒歩15分
- 接道状況
- 南側 公道7.4m
- 土地面積
- 163.34㎡ (49.41坪)
- 建物面積
- 109.30㎡ (33.06坪)
- 築年数
- 2026年 (令和8) 1月
- 建ぺい率
- 70%
- 容積率
- 200%
- 土地権利
- 所有権
- 構造および階数
- 木造
- 小学校区
- 神野 ( 450m )
- 中学校区
- 成章 ( 1600m )
- 私道負担
- 地目
- 宅地
- 現況
- 引渡時期
- 相談
- 駐車場
- 有 2台
- 上水道
- 公共
- 下水道
- ガス
- 都市計画
- 市街化区域
- 用途地域
- 1種中高
- 建築確認番号
- 第12502590号
- 設備・条件
- CATV、複層ガラス、追い焚き、駐車場2台分、公営水道、プロパンガス、下水、シャワー、フローリング、洗面所独立、シューズボックス、照明器具付、全室フローリング
- 備考
- ぐるっとさがナビ防災・防犯マップによると洪水による浸水深0.5m未満想定区域
- 取引態様
- 仲介

