新築一戸建て 佐賀市大和町大字尼寺5号棟
所在地
佐賀市大和町大字尼寺5号棟
3,199万円
30.68坪
4LDK
新築戸建!
駐車スペース2台分!
オール電化住宅!
プライスダウンいたしました!3399万→3199万!
春日郵便局まで徒歩で約1分(約80m)
マックスバリュ尼寺店まで徒歩で約4分(約300m)
セブンイレブン佐賀大和尼寺店まで徒歩で約9分(約650m)
春日保育園まで徒歩で約8分(約550m)
イオンモール佐賀大和まで車で約4分(約1.2km)
JR佐賀駅まで車で約15分(約5.6km)
月々の支払例
【※ボーナス払い無し】
【※ボーナス払い無し】
※佐賀銀行/頭金0円、返済期間40年、金利1.120%変動金利変動金利型(2026年04月)の場合
※金利は毎月見直されます。別途、融資手数料、その他諸費用がかかります。
※審査により金利は変わる可能性があります。
物件概要
- 交通
-
長崎線 佐賀駅 まで 徒歩69分
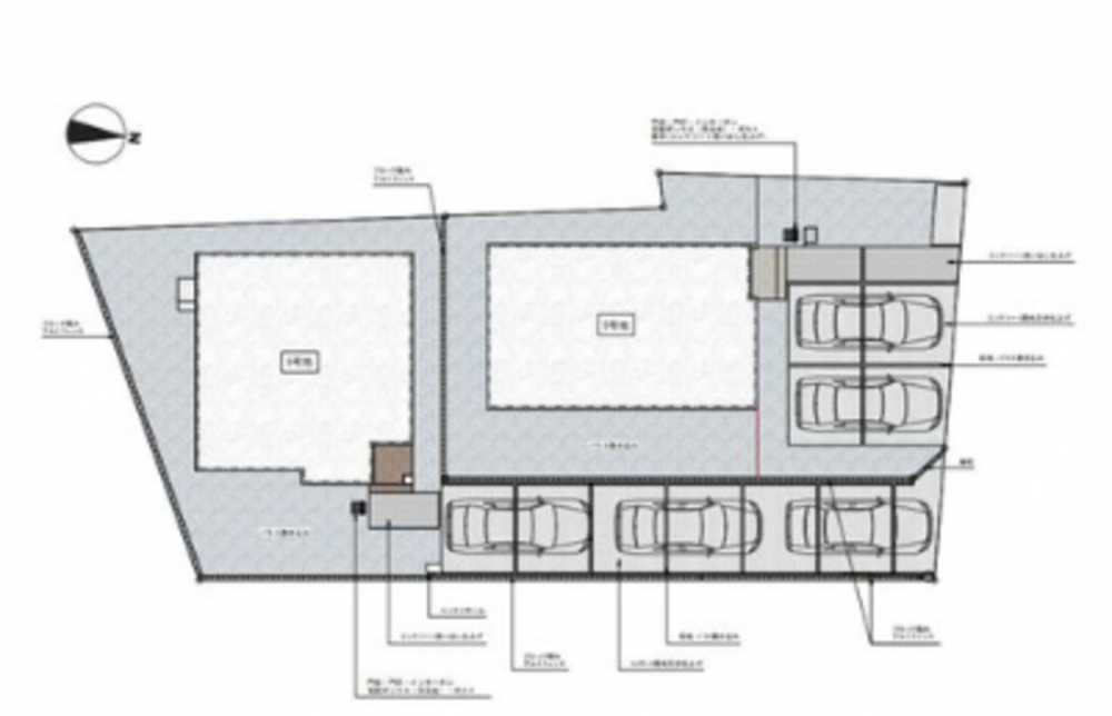
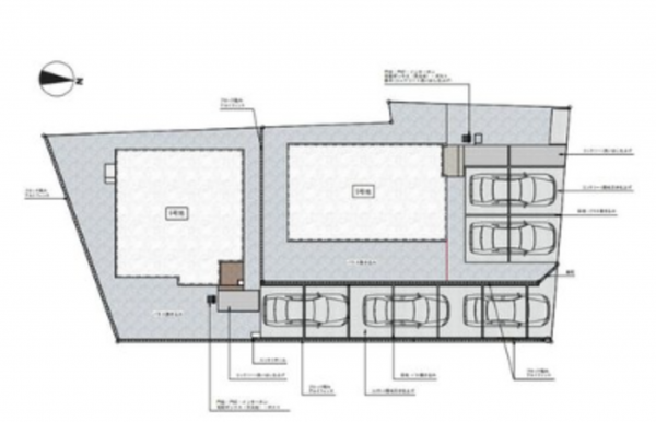
- 接道状況
- 北側 公道6.3m 間口約9.1m アスファルト舗装
- 土地面積
- 169.41㎡ (51.24坪)
- 建物面積
- 101.44㎡ (30.68坪)
- 築年数
- 2026年 (令和8) 5月 完成予定
- 建ぺい率
- 60%
- 容積率
- 200%
- 土地権利
- 所有権
- 構造および階数
- 木造 地上2階建
- 小学校区
- 春日 ( 170m )
- 中学校区
- 大和 ( 1300m )
- 私道負担
- なし
- 地目
- 宅地
- 現況
- 建築中
- 引渡時期
- 予定 2026年5月 下旬
- 駐車場
- 2台
- 上水道
- 公共
- 下水道
- 公共
- ガス
- 都市計画
- 市街化区域
- 用途地域
- 1種住居
- 建築確認番号
- 第12505550号
- 設備・条件
- オール電化、システムキッチン、食器洗浄乾燥機、モニタ付インターホン、洗浄便座、ウォークインクローゼット、複層ガラス、駐車場2台分、床下収納、エコキュート、トイレ2箇所、上水道、下水道、 省エネ給湯器 、 全居室収納、LDK15畳以上、前道6m以上、 整形地 、シャワー付洗面化粧台 、対面式キッチン 、セキュリティ充実 、3面採光 、オートバス 、浴室に窓、節水型トイレ、、全居室フローリング、 天井高2.5m以上、 浄水器
- 備考
- 取引態様
- 仲介

