新築一戸建て 佐賀市若楠3丁目2号地
所在地
佐賀市若楠3丁目2号地
4,580万円
26.54坪
3LDK
ミサワホーム施工!
新築戸建!
EV車充電設備あり!
オール電化住宅!
ローソン佐賀若楠3丁目店まで徒歩で約4分(約290m)
たかぎこども園まで徒歩で約4分(約300m)
佐賀銀行高木瀬支店まで徒歩で約6分(約400m)
佐賀北郵便局まで徒歩で約7分(約450m)
マックスバリュ若楠店まで徒歩で約7分(約450m)
SAGAアリーナまで車で約5分(約1.8km)
JR佐賀駅まで車で約9分(約2.6km)
ゆめタウン佐賀まで車で約10分(約3.0km)
月々の支払例
【※ボーナス払い無し】
【※ボーナス払い無し】
※佐賀銀行/頭金0円、返済期間40年、金利1.120%変動金利変動金利型(2026年05月)の場合
※金利は毎月見直されます。別途、融資手数料、その他諸費用がかかります。
※審査により金利は変わる可能性があります。
物件概要
- 交通
-
長崎線 佐賀駅 バス10分乗車 バス停若楠小学校前 まで 徒歩5分
- 接道状況
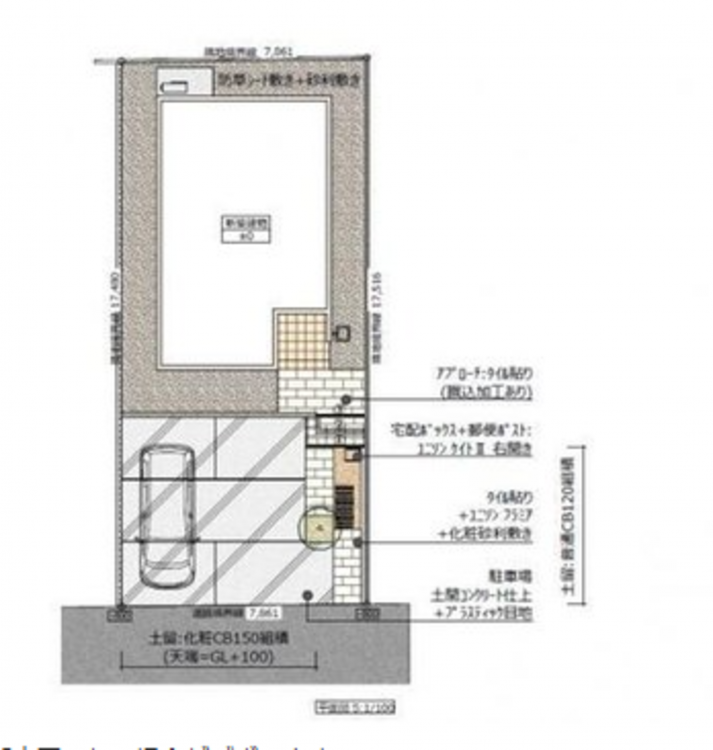
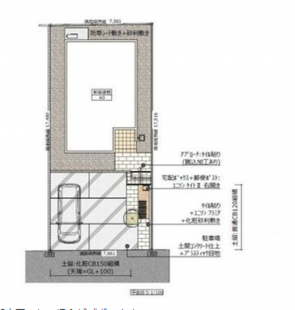
- 南側 公道6.00m
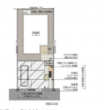
- 土地面積
- 実測 137.53㎡ (41.60坪)
- 建物面積
- 87.76㎡ (26.54坪)
- 築年数
- 2026年 (令和8) 5月 完成予定
- 建ぺい率
- 50%
- 容積率
- 80%
- 土地権利
- 所有権
- 構造および階数
- 木造 地上2階建
- 小学校区
- 若楠 ( 270m )
- 中学校区
- 城北 ( 650m )
- 私道負担
- なし
- 地目
- 現況
- 建築中
- 引渡時期
- 予定 2026年5月
- 駐車場
- 有 2台
- 上水道
- 公共
- 下水道
- 公共
- ガス
- プロパン個別
- 都市計画
- 市街化区域
- 用途地域
- 1種低層
- 建築確認番号
- 第ERI-25039266
- 設備・条件
- オール電化、ルーフバルコニー、システムキッチン、IHクッキングヒーター、食器洗浄乾燥機、ウォークインクローゼット、複層ガラス、駐車場2台分、トイレ2箇所、ユニットバス、水洗トイレ、前面棟なし、EV車充電設備、太陽光発電システム、浴室に窓、浴室暖房、バストイレ別、シャワー付き洗面化粧台、収納、南向き、防犯用ガラス、エアコン2台以上、LDK15帖以上、室内物干し、制震構造、耐震構造、建設住宅性能評価取得(新築時)、設計住宅性能評価取得、住宅性能評価、フラット35S適合証明書、高気密高断熱住宅、長期優良住宅、外壁サイディング、外水栓、火災警報器(報知機)
- 備考
- ぐるっとさがナビ防災・防犯マップによると洪水による浸水深0.5m未満想定区域
- 取引態様
- 仲介

